Before

After

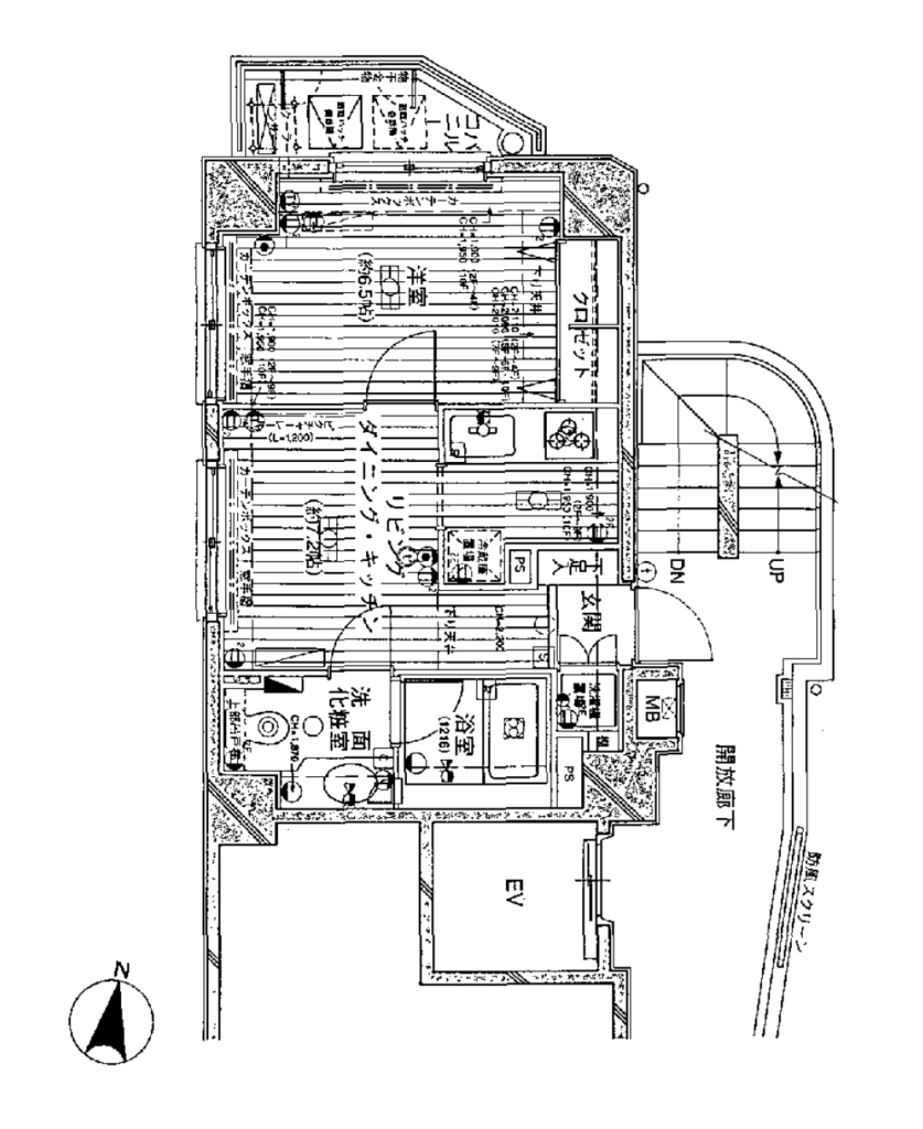
【リフォーム全体のポイント・間取変更ポイント等】
手狭なリビングダイニング、洗面とトイレが同じ空間となっておりそれを経由しないと入れない浴室。
コンパクトな間取の物件を今の生活スタイルにあった間取りへとリフォームを行いました。
ワンルームとしても広々利用できる様に引込戸による間仕切りで洋室とリビングダイニングとを一体利用出来るように間取変更をしました。
また閉鎖的なキッチンから、リビングに対面する今のスタイルのキッチンとし、トイレと洗面室をそれぞれ独立した空間に設ける事により二人で暮らすライフスタイルでもプライバシーを確保して利用が可能なようにしました。
【リビング・ダイニング】
Before

After

当時の間取で暗い印象のあったLDを明るい色味の壁紙、温かみのある色合いの木目柄のフローリング、調色シーリングライトを設置する事で空間がより明るくなるようにしました。
【キッチン】
Before

After

落ち着いた色合いのシステムキッチン。収納たっぷりで調理スペースも広々利用できます。
一体型の食洗器付きキッチンにより毎日の料理後のお皿洗いが楽になる充実した設備。
従来の独立型キッチンから、対面式キッチンへ変更することで、
- 料理中でもリビングとの一体感を確保
- 家事動線の改善
- 生活の中心が自然とLDKに集まる設計
現代の住まいに求められる開放性と機能性の両立を図りました。
【寝室】
Before

After

当時の間取に見られる空間を取りすぎた無駄の多い洋室スペースに対し、コンパクトタイプでLDKを広々と使える様に再設計し、ダブルベッドが入るジャストサイズの洋室のサイズにリフォームしました。
【玄関】
Before

After

豊富な収納を備えた玄関スペース。
大型ミラー付きシューズボックスで、身支度もスムーズに出来ます。
また、お部屋に入ったときに一番最初に目に留まるスペースのため大理石調のタイルや間接照明を用いた明るさと清潔感を意識した空間にしました。
また、今のスタイルに合わせた人感センサータイプのダウンライトになっております。
【浴室】
Before

After

木目調パネルが温かみを感じる浴室です。
今のライフスタイルに合わせた追焚・お湯はり機能の備わった浴室によりお風呂の湯量を見張る必要がありません。
また、浴室乾燥機付きのためバルコニーでの外干しが気になる方や翌日に必要な大事な衣類の速乾のための空間としても利用出来ます。
【トイレ/洗面室】
Before

After

After

従来は洗面台とトイレが同一スペースでしたが、リノベーションにより洗面スペースを独立。使い勝手と快適性を向上させました。
【洗面室】
ワイドミラー付き洗面台で朝の身支度もスムーズ。三面鏡の背面全てが収納になっているため小物類の収納力もあり、生活感を感じさせない清潔な空間です。またシャワーホース付きのため、朝の洗顔や頭髪のお手入れもラクラクです。
【トイレ】
- 保温機能付きのトイレとなっており、冬場の寒い時期の座りも安心できます。
- また温水洗浄機能付きのため日々の生活利用での衛生面でも安心できます。
- また節水型トイレのため毎日の利用で水道代を気にする心配も減ります。
- 壁面には吊戸棚を設置しており、ストック等の収納力も十分です。



