Before

After

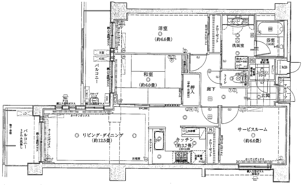
【リフォーム全体のポイント・間取変更ポイント等】
当時の間取であった80㎡近い2LDK+Sの間取に対し、今のライフスタイルに合わせると共に、内装設備にワンランク上の住設を使用しました。また廊下が蛇腹形状に長い間取であったためリフォームに合わせ廊下の幅を狭くし、家族が集うリビングダイニングを可能な限り広く空間を設ける設計としました。キッチンについても、間取の形状から料理好きな客層にはたまらないアイランドキッチンを採用しております。
【リビング・ダイニング】
Before

After

当時の間取で暗い印象のあったLDを明るい色味の壁紙、温かみのある色合いの木目柄のフローリング、調色シーリングライトを設置する事で空間がより明るくなるようにしました。さらに天井部に間接照明を設置する事でより明るくするのみではなくタワーマンションのような高級感のあるリビングダイニングを演出しております。
【キッチン】
Before

After

落ち着いた色合いのシステムキッチン。収納たっぷりで調理スペースも広々利用できます。
一体型の食洗器付きキッチンにより毎日の料理後のお皿洗いが楽になる充実した設備。
従来の独立型キッチンから、対面式キッチンへ変更することで、
- 料理中でもリビングとの一体感を確保
- 家事動線の改善
- 生活の中心が自然とLDKに集まる設計
現代の住まいに求められる開放性と機能性の両立を図りました。
【寝室】
Before

After

当時の間取りにて縦長に位置する洋室を正方形に近い形状の洋室にて2部屋からなるように間取変更を行いました。また、主寝室となる寝室については収納部をWICにすることで大容量の収納が可能になるように設計しました。
【SIC(シューズインクローゼット)】
Before

After

【玄関】
Before

After

豊富な収納を備えた玄関スペース。
大型ミラー付きシューズボックスで、身支度もスムーズに出来ます。
また、お部屋に入ったときに一番最初に目に留まるスペースのため大理石調のタイルや間接照明を用いた明るさと清潔感を意識した空間にしました。
また、今のスタイルに合わせた人感センサータイプのダウンライトになっております。
【浴室】
Before

After

木目調パネルが温かみを感じる浴室です。
今のライフスタイルに合わせた追焚・お湯はり機能の備わった浴室によりお風呂の湯量を見張る必要がありません。
また、浴室乾燥機付きのためバルコニーでの外干しが気になる方や翌日に必要な大事な衣類の速乾のための空間としても利用出来ます。さらに浴室TVを設置することでバスタイムをゆったりと過ごせる空間にしております。
【トイレ】
Before

After

- 保温機能付きのトイレとなっており、冬場の寒い時期の座りも安心できます。
- また温水洗浄機能付きのため日々の生活利用での衛生面でも安心できます。
- また節水型トイレのため毎日の利用で水道代を気にする心配も減ります。
- 壁面には吊戸棚を設置しており、ストック等の収納力も十分です。
- さらに独立手洗いを備えており手洗いの衛生面も完備しております。
【洗面室】
Before

After

ワイドミラー付き洗面台で朝の身支度もスムーズ。三面鏡の背面全てが収納になっているため小物類の収納力もあり、生活感を感じさせない清潔な空間です。またシャワーホース付きのため、朝の洗顔や頭髪のお手入れもラクラクです。
【サービスルーム】
Before

After

採光の都合からサービスルームになる部屋については、3枚引込戸を採用する事で、開放時にはLDをより広く利用出来るように、閉塞時には3部屋目の客間として利用出来るように間取の変更を行いました。



